Licitație
Distribuie

Spatiu birouri - Calea Gusteritei - ansamblul City Residence - 850 mp

PRET: 6.500 EUR
Vizualizări 6385
06.03.2026
Proprietar
PRET: 6.500 EUR -06.03.2026
Vizualizări 6385

Sumele Licitate
Vizualizări 6385
06.03.2026
Nu s-au găsit rezultate!

Chirii și Vânzări Imobiliare

Descriere

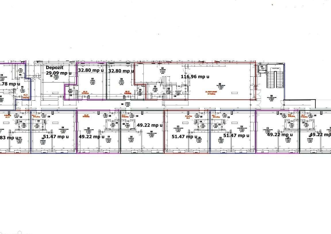
Se ofera spre inchiriere spatiu pentru birouri, cu o suprafata de aprox 850 mp, amplasat intr-o cladire constructie noua, situata pe Calea Gusteritei nr. 21-23 (ansamblul City Residence Sibiu), la primul nivel. Dispune de incalzire in pardoseala, sistem pregatit pentru aer conditionat. Spatiul este izolat cu polistiren de 15 cm, si este in mare parte pozitionat pe S-E, fiind eficient atat pentru iluminat cat si termic, mai ales iarna. Spatiul este impartit in 11 birouri, fiecare cu baie proprie, cu suprafete cuprinse intre 33 si 51 mp, spatiu de depozitare cu suprafata de 29 mp u, si un spatiu cu suprafata de 116,96 mp, compartimentat in 4 incaperi si o baie, unde se poate amenaja bucatarie, cantina cu loc de luat masa, sala sedinte, etc, in functie de necesitatile chiriasului. Accesul se face din strada principala, Calea Gusteritei, pe la parter, unde sunt 2 holuri de respectiv 17/ 40 mp, pe unde este accesul doar pentru birouri. Spatiul va fi predat finisat, in prezent se fac lucrari de amenajari interioare. Se pot asigura si 17 locuri de parcare subterane. Pretul este de 6.500 eur + tva/ luna. Se ofera spre inchiriere cu comision 0 % - direct proprietar!

Vânzător

Sibiu

Proprietar

Pe site din ian. 2022

Preț: 6.500 EUR

Covasna, Aita Mare

Recenzii
0 Recenzii de afișat
 
Anunțuri similare
Licitație
Ad Thumbnail
De Vanzare
Apartament 2 camere - Baneasa - Terasa S...
Proprietar

- 17.03.2026

94.500 EUR
Vânzare Directa
Ad Thumbnail
De Inchiriat
Apartament de Lux de inchiriat in Atriun...
Proprietar

Iași - 17.03.2026

450 EUR
Vânzare Directa
Ad Thumbnail
De Vanzare
Vand Vila tip Triplex 4 Camere 2 Bai - D...
Proprietar

Bragadiru - 17.03.2026

75.000 EUR
Vânzare Directa
Ad Thumbnail
De Inchiriat
inchiriez in regim hotelier ultracentral...
Proprietar

- 17.03.2026

25 EUR
//
Promo